
Dubbelhoge uitbouw Amsterdam
Duurzame dubbelhoge uitbouw en totale verbouw woonhuis
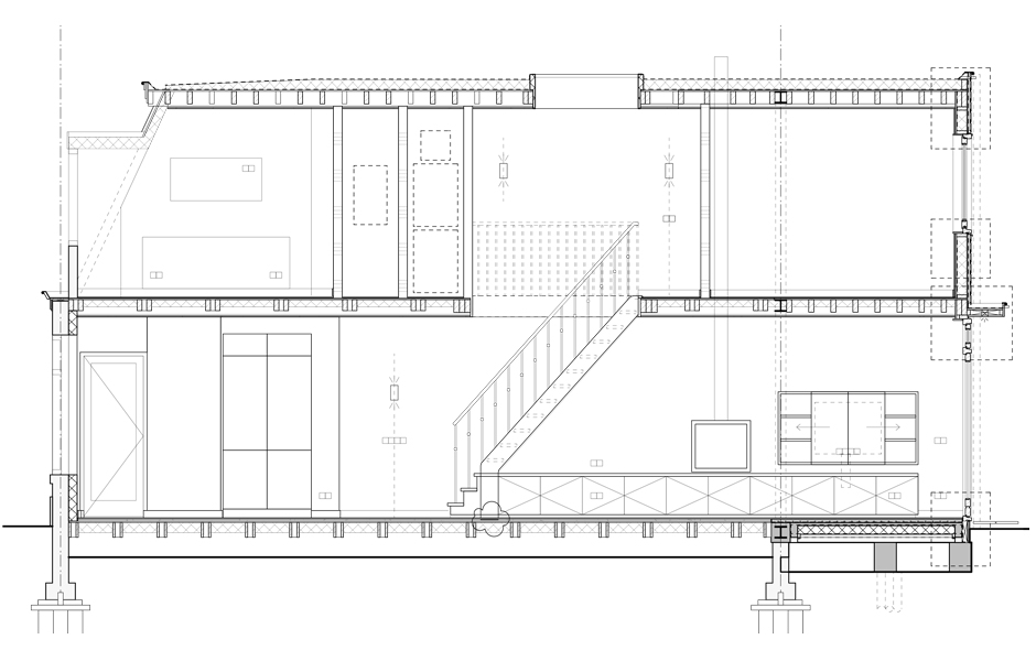
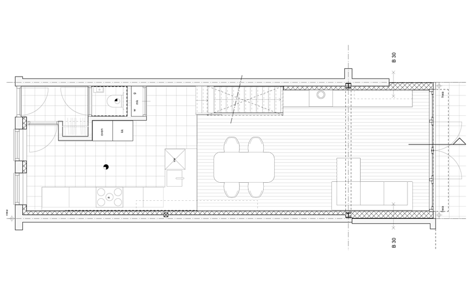
Het ontwerp bestaat uit een nieuwe dubbelhoge uitbouw en een totale verbouw van de woning. De trap is bovenop een meubel geplaatst om extra bergruimte te hebben. Boven de trap is een daklicht geplaatst voor extra lichtinval midden in de woning. En bovenop het plattedak komen de zonnepanelen.
Opdrachtgever
Particulier
Functie
Wonen
Oppervlakte bvo
100 m2
Status
Gereed
Plaats
Amsterdam
Projectteam
ir. Leon Broeren
Fotografie
—





