
Moderne duurzame villa Naarden
Eigentijds, modern, strak en duurzaam
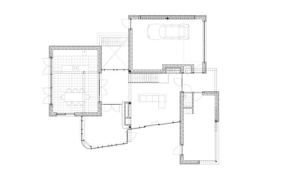
De huidige woning is verouderd en voldoet niet meer aan de bouwfysische eisen van deze tijd. Denk hierbij aan vochtdoorslag, ventilatie, isolatie, thermisch comfort en energiezuinigheid. Daarbij heeft de opdrachtgever een programma wat groter is dan de huidige woning toelaat. En de wens om een goed geïsoleerde, geventileerde en energiezuinige woning te hebben. Na alles overwogen te hebben is er voor sloop/nieuwbouw gekozen. De moderne duurzame villa is ontworpen als een nieuw soort ‘hunebed’ en bestaat uit drie metselwerk volumes op de begane grond met daarin het kantoor, garage voor oldtimers en de keuken. Tussen de stenen volumes, in het hart van het huis, komt de woonkamer die met grote glazen puien de volumes aan elkaar verbindt. Daar bovenop komt een volledig houten verdieping met slaapkamers en badkamers. Onder de woning komt een groot souterrain met daarin een grote wellness. De woning is energieneutraal, ‘nul op de meter’ ontworpen, met de volgende maatregelen;
- PV panelen en sedum bovenop de platte daken
- Grote ramen op het Zuiden en kleine ramen op het Noorden
- Hoogwaardige isolatie
- Lucht/water warmtepomp
- Gebalanceerde ventilatie met warmte terugwinning
- Vloerverwarming
- Houtskeletbouw wanden en houten gevelbekleding
- Triple glas
Opdrachtgever
Particulier
Functie
Moderne villa
Oppervlakte bvo
circa 400 m2
Status
Voorlopig ontwerp
Plaats
Naarden
Projectteam
ir. Jasper Felsch, ir. Leon Broeren
Fotografie
..











