
Transformatie KPN-gebouw Amsterdam
Transformatie naar appartementen, studio’s en maisonnettes
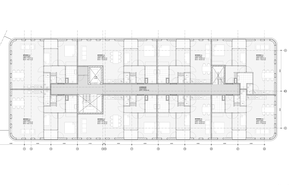
Bij de transformatie van het KPN-gebouw in Amsterdam wordt het gebouw verbouwd naar woningen. In opdracht van Creative Housing hebben we een voorlopig ontwerp gemaakt voor de transformatie van het KPN-gebouw aan de Van Moerkerkenstraat in Amsterdam West. In het gebouw komen 32 woningen met plattegronden variërend van 45m2 tot 90m2. De woningen bestaan uit appartementen, kleine studios voor starters en grotere maisonnette woningen. Het voormalige KPN-gebouw is verbonden met een politiebureau en een gemeentelijk monument genaamd ‘De kleine Verfdoos’.
Uitgangspunten van het ontwerp zijn enerzijds het bestaande gebouw zoveel als mogelijk te hergebruiken. Anderzijds een maximaal aantal woningen te realiseren met respect voor het monument ‘De kleine Verfdoos’. In samenspraak met de gemeente kunnen we bovenop het bestaande gebouw 2 lagen toevoegen. Daarbij is een zeer hoge duurzaamheidsambitie geformuleerd voor deze herontwikkellocatie op het gebied van natuurinclusies bouwen, energie, water en materiaalgebruik. Het nieuwe volume bovenop het gebouw wordt volledig van hout, met sedum dakbedekking en PV-panelen. In het gebouw komen twee stijgkernen met trappen en een lift. En de woningen worden ontsloten door een brede centrale corridor.
Opdrachtgever
Creative Housing
Functie
Woningbouw
Oppervlakte bvo
circa 3000 m2
Status
Definitief ontwerp
Plaats
Amsterdam West
Projectteam
ir. Jasper Felsch, ir. Leon Broeren
Fotografie
..








