
Duurzaam paviljoen
Duurzame vergaderzalen en trouwzaal in het bos
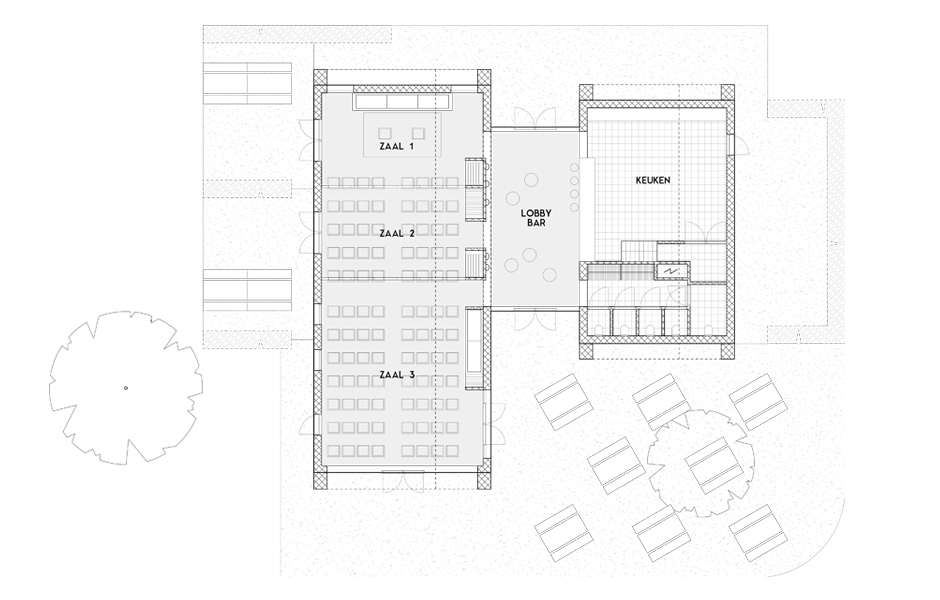
Het ontwerp bestaat uit twee houten volumes met een asymmetrisch zadeldak. De twee volumes worden verbonden door een transparant tussenlid. In het grotere houten volume bevindt zich de grote zaal die in drie delen opgedeeld kan worden. Elk van de 3 zalen heeft zijn eigen buitenruimte, waarbij de buitenruimte aan de achterzijde bedoeld is voor grotere evenementen. Deze is zowel vanuit de grote zaal als ook vanuit de entree te bereiken. In het kleinere volume komen de ondersteunende faciliteiten als de keuken, installaties, toiletten, garderobe en de bar. Het tussenlid verbindt de twee volumes. In het tussenlid komen de entree, lobby en bar.
Opdrachtgever
–
Functie
Horeca | vergaderruimte | evenementen
Oppervlakte bvo
250 m2
Status
Voorlopig ontwerp
Plaats
–
Projectteam
ir. Jasper Felsch, ir. Leon Broeren
Fotografie
—






